Зачем такие заморочки, Косятн? А щя, всё расскажу. Во-первых, унификация плана: почти все планы используют одинаковые размеры плит. Во-вторых, оптимизация рабочих часов: достаточно сделать пару стен, которые используются почти во всех планировках и тупо их соединить между собой. В-третьих, радужный флаг наложение материалов на каждую модель плиты, так целая картина получается реалистичнее.
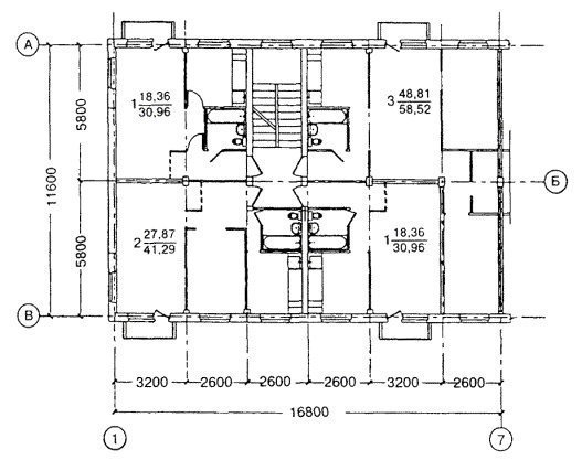
Приблизительные планировки:
Внешний вид:
Хорошо, а оптимизация? С оптимизацией да. Хороший вопрос. Нужно смотреть и тестить. ЛОД модели будут в любом случае, но этим вопрос не решится. Можно использовать систему меш комбайна, но тогда нужно будет думать о том, как реализовать систему разрушения. Так-же можно в текущую систему прорисовки засунуть каждую модель, тогда выйдет так, что если персонаж находится в одной комнате, то из системы выгружаются все остальные части. Но объем системы будет высок, и возможно будет долго загружаться локация. Она и так блин огромная
В общем, на слабых ПК на вряд ли игра будет выдавать комфортные кадры в секунду.
В общем, на слабых ПК на вряд ли игра будет выдавать комфортные кадры в секунду.
В общем работы немного, но времени на это все уйдет достаточно. Зато имея одну готовую конструкцию в два этажа, легко можно сделать 2-х, 3-х, 5-ти и 9-ти этажки. Для интерьера, скорее всего будет написана собственная система расстановки мебели и прочего. Скажем так - в пару кликов.
Вот рабочие прототипы зданий:
На этом всё, спасибо за внимание. Если будут вопросы пишите, Так же интересно послушать ваше мнение, или как Вы делали бы делали здания в своём проекте.

PA











Спасибо, стараемся. Хочется сделать так, что бы игрок переносился в прошлое, и чувствовал так, будто он находится в реальной жизни.
Плитка как эксперимент, так то там должна быть кирпичная кладка, но такие варианты тоже будут)